Charmantes Reihenhaus mit durchdachter Raumaufteilung und zeitgemäßer Ausstattung
Dieses gepflegte Reihenhaus überzeugt durch eine gelungene Kombination aus moderner Ausstattung und einer optimalen Raumaufteilung. Auf rund 130 m² Wohnfläche verteilen sich fünf Zimmer, eine Einbauküche, ein Badezimmer sowie zwei Balkone, die zusätzlichen Wohnkomfort bieten.
Die Küche ist mit einer funktionalen Einbauküche (EBK) ausgestattet und bietet ausreichend Platz für kulinarische Entfaltung. Das gesamte Haus ist lichtdurchflutet und bietet dank der geschickten Aufteilung ein angenehmes Wohnambiente – ideal für Familien oder Paare mit Platzbedarf.
Besonders praktisch: Eine integrierte Garage im Haus sorgt für kurze Wege und zusätzlichen Stauraum.
Das Objekt ist derzeit vermietet und eignet sich daher auch ideal als Kapitalanlage.
Details zur Aufteilung:
Erdgeschoss:
Hauseingangsbereich
Bürozimmer
Hauswirtschaftsraum inkl. Waschmaschinenstellplatz
Garage
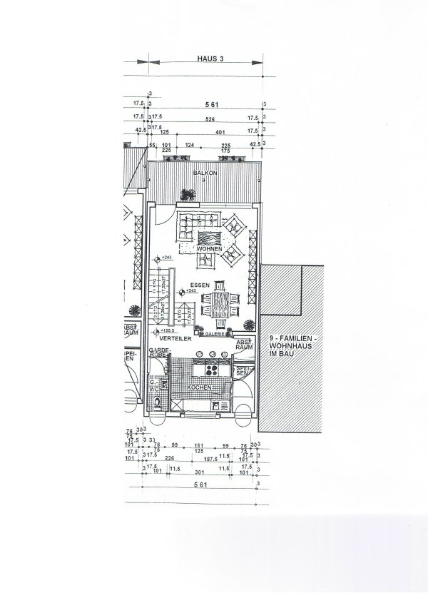
Obergeschoss:
großzügiger Wohn- und Essbereich
Küche mit EBK
Speisekammer
Gästetoilette
kleiner Abstellraum
Balkon
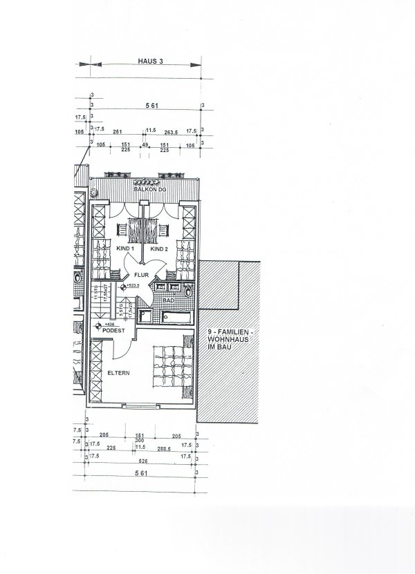
Dachgeschoss:
Etagenflur
Elternschlafzimmer
Kinderzimmer
Kinderzimmer II
Badezimmer
Balkon
Kusel, eine charmante Kleinstadt in Rheinland-Pfalz, überzeugt durch ihre idyllische Lage im Pfälzer Bergland. Die Stadt verbindet ländliche Ruhe mit einer guten Infrastruktur und bietet eine hohe Lebensqualität. Geprägt von einer malerischen Umgebung aus Hügeln, Wäldern und Wiesen, liegt Kusel dennoch verkehrsgünstig, unter anderem durch die Nähe zur A62 sowie zum Bahnhof in der Innenstadt. Der Ort verfügt über diverse Einkaufsmöglichkeiten, kulturelle Institutionen, Schulen und medizinische Einrichtungen.
Die Immobilie befindet sich in einem ruhigen Wohngebiet am Rande von Kusel, ideal für Familien und Naturliebhaber. Der Stadtkern mit Supermärkten, Restaurants und weiteren Versorgungsmöglichkeiten ist etwa 1,2 km entfernt und in wenigen Minuten erreichbar. Eine Grundschule liegt etwa 1 km entfernt, während weiterführende Schulen, wie das Siebenpfeiffer-Gymnasium, rund 1,5 km entfernt liegen. Für die Kleinsten findet sich eine Kindertagesstätte in etwa 800 m Entfernung. Das Westpfalz-Klinikum Kusel ist circa 3,5 km entfernt und gewährleistet eine umfassende medizinische Versorgung.
Naturliebhaber profitieren von der Nähe zum Freizeitzentrum Fuchsloch, das mit Wander- und Radwegen etwa 5 km entfernt liegt. Pendler erreichen die A62 in rund 5 Fahrminuten, was eine schnelle Anbindung an Kaiserslautern und Trier ermöglicht. Der Bahnhof Kusel liegt knapp 2 km entfernt und bietet regelmäßige Verbindungen zu umliegenden Städten. Sportvereine, Freizeitangebote und ein Freibad runden das Angebot im direkten Umfeld ab.
Details zur Ausstattung:
Bauweise: massiv,
Dach: Satteldach (Kaltdach)
Eindeckung: Ziegel
Fenster & Türen:
doppelt verglaste Holzfenster
Rollladen vorhanden
Fußboden:
Fliesen
Wände und Decken:
Tapete
Heizung:
Erdgastherme, 2023 erneuert
Fußbodenheizung
Energieeffizienz:
Energieverbrauchssausweis, gültig bis 08.07.2029
Endenergieverbrauch:123,4 kWh /m2*a)
Klasse: D
Versorgung: Erdgas
Baujahr Gebäude: 2003
Sanitärausstattung:
Badezimmer im DG mit
Dusche mit Kabine, Badewanne, Toilette, Bidet, Waschbecken
raumhoch gefliest
Gästetoilette im OG mit:
Waschbecken und Toilette
Küche:
Einbauküche mit Ober- und Unterschränken
Backofen, Glaskeramikkochfeld, Dunstabzugshaube, Spülmaschine, Kühl-Gefrierkombination
Hinweise:
GELDWÄSCHE: Als Immobilienmaklerunternehmen ist die FIRMA AS-Immobilien nach § § 1, 2 Abs. 1 Nr. 10, 4 Abs. 3 Geldwäschegesetz (GwG) dazu verpflichtet, vor Begründung einer Geschäftsbeziehung die Identität des Vertragspartners festzustellen und zu überprüfen. Hierzu ist es erforderlich, dass wir die relevanten Daten Ihres Personalausweises festhalten (beispielsweise mittels einer Kopie). Das Geldwäschegesetz (GwG) sieht vor, dass der Makler die Kopien bzw. Unterlagen fünf Jahre aufbewahren muss.
PROVISIONSHINWEIS: Mit der Anfrage bei und durch Inanspruchnahme der Dienstleistung der Firma AS-IMMOBILIEN, wird ein Maklervertrag geschlossen. Sofern es durch die Tätigkeit der Firma AS-IMMOBILIEN zu einem wirksamen Hauptvertrag mit der Eigentümerseite kommt, haben Eigentümer und Käufer bei Abschluss eines KAUFVERTRAGS eine Maklercourtage in Höhe von jeweils 3,57% des Kaufpreises, mindestens jedoch 3.927,00 Euro inkl. MwSt. an die Firma AS-IMMOBILIEN gegen Rechnung zu zahlen. Die Höhe der Courtage richtet sich nach den ab dem 23.12.2020 in Kraft getretenen gesetzlichen Regelungen zur Teilung der Maklercourtage. Hiernach wird die Courtage regelmäßig für beide Parteien (Eigentümer und Käufer) verdient und fällig.
HAFTUNG: Wir weisen darauf hin, dass die von uns weitergegebenen Objektinformationen, Unterlagen, Pläne etc. vom Verkäufer bzw. Vermieter stammen. Eine Haftung für die Richtigkeit oder Vollständigkeit der Angaben übernehmen wir daher nicht. Es obliegt daher unseren Kunden, die darin enthaltenen Objektinformationen und Angaben auf ihre Richtigkeit hin zu überprüfen. Alle Immobilienangebote sind freibleibend und vorbehaltlich Irrtümer, Zwischenverkauf- und Vermietung oder sonstiger Zwischenverwertung.
WIDERRUFSRECHT:
Sie haben das Recht, binnen vierzehn Tagen ohne Angabe von Gründen diesen Vertrag zu widerrufen. Die Widerrufsfrist beträgt vierzehn Tage ab dem Tag des Vertragsabschlusses. Um Ihr Widerrufsrecht auszuüben, müssen Sie uns (AS Immobilien Andreas Schnellting, Fritz-Wunderlich-Straße 20, 66869 Kusel, Tel. (06381) 99 53 02, Fax (06381) 99 53 06, oder E-Mail mittels einer eindeutigen Erklärung (z.B. ein mit der Post versandter Brief, Telefax oder E-Mail) über Ihren Entschluss, den Vertrag zu widerrufen, informieren. Zur Wahrung der Widerrufsfrist reicht es aus, dass Sie die Mitteilung über die Ausübung des Widerrufsrechts vor Ablauf der Widerrufsfrist absenden.
| Objekt ID: | 202507011 |
| Kaufpreis: | 269.000,00 EUR |
| Provision für Käufer: | Käuferprovision: 3,57 % inkl. MwSt., Verkäuferprovision: 3,57 % inkl. MwSt. |
| Zimmer: | 5 |
| Schlafzimmer: | 3 |
| Badezimmer: | 1 |
| Wohnfläche: | 130,00 m² |
| Grundstücksfläche: | 86,00 m² |
| Etagen: | 3 |
| Baujahr: | 2003 |
| Letzte Renovierung: | 2023 |
| Objektzustand: | gepflegt |
| Preise zuzüglich Mehrwertsteuer: | ja |
| Anzahl Garagenstellplätze: | 1 |
| Stellplätze: | 1 |
| Balkone: | 2 |
| Bodenbelag: | Fliesen |
| Badausstattung: | Dusche, Badewanne, Bidet |
| Küche: | Offene Küche |
| Energieausweis-Ausstellungsdatum: | 09.07.2019 |
| Energieausweis-Jahrgang: | ab Mai 2014 |
| Energieausweis-Gebäudeart: | Wohngebäude |
| Heizungsart: | Zentralheizung |
| Befeuerungsart: | Erdgas H |
| Baujahr lt. Energieausweis: | 2003 |
| Energieeffizienzklasse: | D |
| Wert des Endenergieverbrauchs: | 123,40 kWh/(m²*a) |
| Art des Energieausweises: | Verbrauch |
| Gültigkeit des Energieausweises: | 08.07.2029 |







































