AS Immobilien | Fritz-Wunderlich-Straße 20 | 66869 Kusel (06381) 99 53 02 info@as-immobilie.de

Willkommen in Ihrem neuen Zuhause – Großzügiges 1- bis 2-Familienhaus mit Gartenidylle und Bachlauf

Dieses außergewöhnliche Anwesen verbindet historischen Charme mit modernem Komfort und bietet Ihnen Raum zum Leben, Entspannen und Gestalten. Auf einem großzügigen Grundstück mit 1.537 m² erwartet Sie ein liebevoll gepflegtes Haus, das durch seine Vielfältigkeit ebenso überzeugt wie durch seine einzigartige Lage – mit direktem Zugang zur Natur und dennoch gut angebunden.

Das Haus – Historie trifft auf moderne Wohnqualität

Ursprünglich um die vorletzte Jahrhundertwende erbaut, wurde das Gebäude im Jahr 1966 umfassend erweitert, in den 1980er Jahren durch einen Anbau ergänzt und in den letzten Jahren kontinuierlich renoviert und modernisiert.

Insgesamt stehen Ihnen über 300 m² Wohnfläche zur Verfügung, verteilt auf zwei Etagen mit insgesamt 10 Zimmern, zwei Küchen, zwei Bädern, einem Balkon sowie einer Loggia. Ob als großzügiges Einfamilienhaus oder komfortables Zuhause für zwei Generationen – diese Immobilie lässt Ihnen alle Freiheiten.

Wohnen im Grünen – Garten mit Herz und Seele

Die Zufahrt erfolgt über die ruhige Gartenseite des Grundstücks durch ein zweiflügeliges, elektrisches Hoftor der Firma Hörmann. Der eingewachsene Garten ist ein echtes Highlight – mit abwechslungsreicher Bepflanzung, altem Baumbestand und einem malerischen Bachlauf am Grundstücksrand. Ein Ort, der zu jeder Jahreszeit begeistert.

Ein überdachter Freisitz mit Blick ins Grüne lädt zum Verweilen ein – sei es bei einem Frühstück im Sommer oder einem gemütlichen Abend mit Familie und Freunden.

Für eine umweltfreundliche Gartenbewässerung steht Ihnen eine 8.000-Liter-Zisterne mit elektrischer Pumpe zur Verfügung.

Wohlig wohnen – mit Liebe zum Detail

Ein besonderes Wohlfühl-Extra bietet der drehbare Kaminofen der Firma Tonwerk (Baujahr 2009), der für gemütliche Stunden sorgt. Die Außenfassade wurde zuletzt 2014 erneuert und rundet den gepflegten Gesamteindruck harmonisch ab.

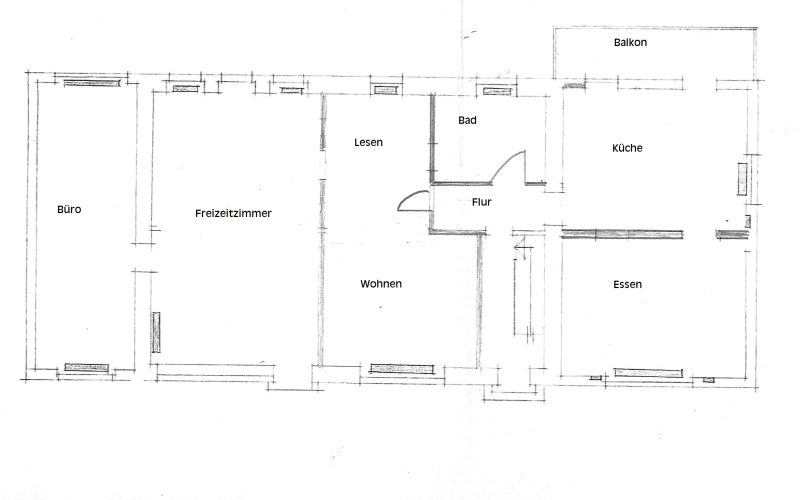
Raumaufteilung im Überblick

Erdgeschoss
Großzügiges Wohnzimmer
Küche mit Zugang zum Südbalkon
Badezimmer
Hauseingang und Flur mit Treppenhaus
Etagenflur
Esszimmer
Freizeitzimmer
Arbeitszimmer
Auf dieser Etage können Sie bis zu 3 Zimmer auch als Schlafzimmer nutzen

Dachgeschoss
Elternschlafzimmer
Küche (alternativ als Ankleide- oder Schlafzimmer nutzbar)
Badezimmer
Kinderzimmer I
Kinderzimmer II
Kinderzimmer III
Gäste- oder Arbeitszimmer
Loggia mit Blick ins Grüne
Etagenflur
Zugang zum Dachboden über eine Ausschubtreppe

Anmerkung:
Eines der zuvor genannten Kinderzimmer kann aufgrund der vorhandenen Anschlüsse auch als Küche genutzt werden

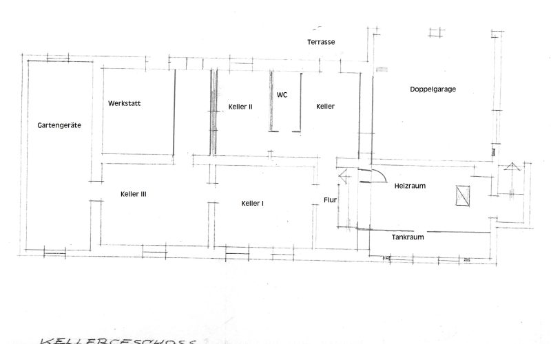
Kellergeschoss
6 Kellerräume, davon 3 mit Zugang von innen und außen
Heizraum und Tankraum
Gartentoilette

Garagen & Außenbereiche
Großzügige Doppelgarage mit Überhöhe
Neue elektrische Garagentore
Gepflegte, asphaltierte Zufahrt

Die Gemeinde Theisbergstegen mit ihren ca. 700 Einwohnern liegt im Landkreis Kusel und gehört zur Verbandsgemeinde Kusel-Altenglan. Kindergarten und Grundschule sind im Ortsteil Godelhausen, weiterführende Schulen Einkaufsmöglichkeiten und Ärzte befinden sich in Kusel und Altenglan, . In Theisbergstegen befindet sich ein Bahnhof mit Zug- und Busverbindungen.

Zusätzliche Ausstattung & Highlights

Internetanschluss: Anbieter Quix/Inexio – bis 100.000 kbit/s, Glasfaseranschluss vorhanden, noch nicht aktiviert
Kanalisation: Im Jahr 2006 komplett durch Fachfirma erneuert
Stromversorgung: Elektrik modernisiert
TV: SAT-Anlage mit mehreren TV-Anschlüssen im Haus
Heizung: Öl-Zentralheizung Marke Viessmann, Baujahr 1988
Kaminofen für feste Brennstoffe im Wohnzimmer
Fenster:
Dreifach verglast mit Schallschutz, teils elektrische Rollläden

Bodenbeläge:
Kombination aus Echtholzparkett, Fliesen, Linoleum und Teppichboden je nach Raum

Fazit

Diese Immobilie überzeugt mit Großzügigkeit, Substanz und liebevollen Details – perfekt für Menschen mit Platzbedarf, Naturverbundenheit und dem Wunsch nach einem Zuhause mit Geschichte und Potenzial.

Kontaktieren Sie uns gerne für weitere Informationen oder einen Besichtigungstermin – wir freuen uns auf Ihre Nachricht!

Hinweise:

GELDWÄSCHE: Als Immobilienmaklerunternehmen ist die FIRMA AS-Immobilien nach § § 1, 2 Abs. 1 Nr. 10, 4 Abs. 3 Geldwäschegesetz (GwG) dazu verpflichtet, vor Begründung einer Geschäftsbeziehung die Identität des Vertragspartners festzustellen und zu überprüfen. Hierzu ist es erforderlich, dass wir die relevanten Daten Ihres Personalausweises festhalten (beispielsweise mittels einer Kopie). Das Geldwäschegesetz (GwG) sieht vor, dass der Makler die Kopien bzw. Unterlagen fünf Jahre aufbewahren muss.

PROVISIONSHINWEIS: Mit der Anfrage bei und durch Inanspruchnahme der Dienstleistung der Firma AS-IMMOBILIEN, wird ein Maklervertrag geschlossen. Sofern es durch die Tätigkeit der Firma AS-IMMOBILIEN zu einem wirksamen Hauptvertrag mit der Eigentümerseite kommt, haben Eigentümer und Käufer bei Abschluss eines KAUFVERTRAGS eine Maklercourtage in Höhe von jeweils 3,57% des Kaufpreises, mindestens jedoch 3.927,00 Euro inkl. MwSt. an die Firma AS-IMMOBILIEN gegen Rechnung zu zahlen. Die Höhe der Courtage richtet sich nach den ab dem 23.12.2020 in Kraft getretenen gesetzlichen Regelungen zur Teilung der Maklercourtage. Hiernach wird die Courtage regelmäßig für beide Parteien (Eigentümer und Käufer) verdient und fällig.

HAFTUNG: Wir weisen darauf hin, dass die von uns weitergegebenen Objektinformationen, Unterlagen, Pläne etc. vom Verkäufer bzw. Vermieter stammen. Eine Haftung für die Richtigkeit oder Vollständigkeit der Angaben übernehmen wir daher nicht. Es obliegt daher unseren Kunden, die darin enthaltenen Objektinformationen und Angaben auf ihre Richtigkeit hin zu überprüfen. Alle Immobilienangebote sind freibleibend und vorbehaltlich Irrtümer, Zwischenverkauf- und Vermietung oder sonstiger Zwischenverwertung.

WIDERRUFSRECHT: Sie haben das Recht, binnen vierzehn Tagen ohne Angabe von Gründen diesen Vertrag zu widerrufen. Die Widerrufsfrist beträgt vierzehn Tage ab dem Tag des Vertragsabschlusses. Um Ihr Widerrufsrecht auszuüben, müssen Sie uns (AS Immobilien Andreas Schnellting, Fritz-Wunderlich-Straße 20, 66869 Kusel, Tel. (06381) 99 53 02, Fax (06381) 99 53 06, oder E-Mail mittels einer eindeutigen Erklärung (z.B. ein mit der Post versandter Brief, Telefax oder E-Mail) über Ihren Entschluss, den Vertrag zu widerrufen, informieren. Zur Wahrung der Widerrufsfrist reicht es aus, dass Sie die Mitteilung über die Ausübung des Widerrufsrechts vor Ablauf der Widerrufsfrist absenden

Objekt ID: 202507171
Kaufpreis: 249.000,00 EUR
Provision für Käufer: 3,57 % inkl. MwSt.,
Zimmer: 10
Schlafzimmer: 8
Badezimmer: 2
Wohnfläche: 300,00 m²
Grundstücksfläche: 1.537,00 m²
Etagen: 2
Baujahr: 1900
Letzte Renovierung: 2023
Objektzustand: gepflegt
Preise zuzüglich Mehrwertsteuer:ja
Anzahl Garagenstellplätze:2
Stellplätze:2
Balkone:1
Terrassen:1
Loggien:1
Bodenbelag:Fliesen, Teppich, Parkett, Linoleum
Badausstattung:Badewanne, Fenster
Warmwasser im Energieverbrauch enthalten:nein
Energieausweis-Ausstellungsdatum:23.07.2025
Energieausweis-Jahrgang:ab Mai 2014
Energieausweis-Gebäudeart:Wohngebäude
Garage Garten Balkon Terrasse Einbauküche Abstellraum Kabel/Sat-TV
Heizungsart: Zentralheizung
Befeuerungsart: Öl
Baujahr lt. Energieausweis: 1959
Energieeffizienzklasse: H
Wert des Endenergiebedarfs: 363 kWh/(m²*a)
Art des Energieausweises: Bedarf
Gültigkeit des Energieausweises: 22.07.2035