Komfortable 4-Zimmer-Eigentumswohnung mit Balkon und Tiefgarage in Trier
Willkommen in Ihrem neuen Zuhause – diese großzügige Eigentumswohnung im 3. Obergeschoss eines gepflegten Mehrfamilienhauses aus dem Jahr 1982 überzeugt durch ihren durchdachten Grundriss, helle Räume und einen schönen Ausblick über Trier.
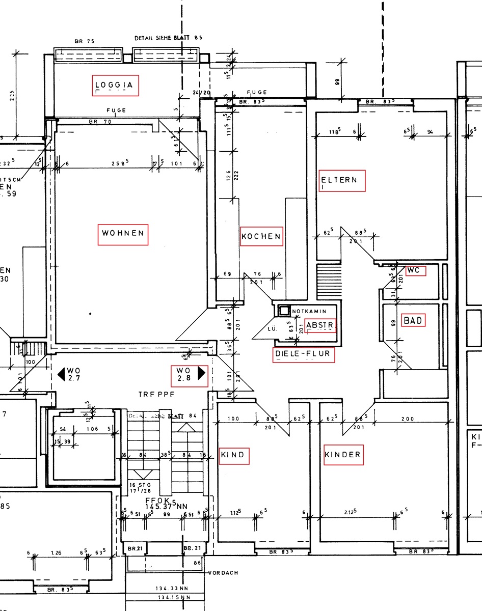
Auf einer Wohnfläche von ca. 90 m² stehen Ihnen vier Zimmer, eine Küche, ein Badezimmer sowie ein separates WC zur Verfügung.
Das großzügige Wohnzimmer mit rund 23 m² bildet das Herzstück der Wohnung. Große Panoramafenster sorgen für eine angenehme Lichtdurchflutung und schaffen ein einladendes Wohnambiente. Vom Wohnzimmer aus gelangen Sie direkt auf den überdachten Balkon, der zum Entspannen und Verweilen einlädt.
Die Küche ist mieterseits mit einer Einbauküche ausgestattet und bietet ausreichend Platz für gemeinsame Kochmomente.
Neben dem Wohnzimmer erwarten Sie ein Elternschlafzimmer sowie zwei weitere Zimmer, die flexibel als Kinder-, Arbeits- oder Gästezimmer genutzt werden können.
Das Badezimmer und die Toilette sind getrennt angeordnet. Im Jahr 2017 wurde das Badezimmer zudem mit einer altersgerechten Dusche modernisiert.
Die Böden sind überwiegend mit Parkett bzw. PVC-Belag ausgestattet, in den Sanitärräumen wurde Fliesenbelag gewählt.
Die vorhandenen Holz-/Alufenster mit Isolierverglasung sorgen für eine gute Wärme- und Schallisolierung.
Komfort bietet auch der Aufzug, über den Sie Ihre Wohnung bequem erreichen können. Ein besonderes Plus ist der geräumige Tiefgaragenstellplatz, der direkt über den Aufzug zugänglich ist – praktisch und wettergeschützt zugleich. Des Weiteren ist ein Kellerraum vorhanden.
________________________________________
Die Wohnung befindet sich in einem gepflegten Wohnumfeld in Trier, einer der attraktivsten Städte der Region. Einkaufsmöglichkeiten, Schulen, Ärzte und öffentliche Verkehrsmittel sind in wenigen Minuten erreichbar. Durch die gute Anbindung an das Stadtzentrum sowie die Nähe zur Natur bietet diese Lage eine perfekte Kombination aus urbanem Wohnen und Lebensqualität.
Highlights auf einen Blick:
• Baujahr 1982
• Wohnfläche ca. 90 m²
• 4 Zimmer, Küche, Bad, separates WC
• Großes Wohnzimmer mit ca. 23 m² und Panoramafenstern
• Überdachter Balkon
• Aufzug
• Tiefgaragenstellplatz (im Kaufpreis enthalten)
• Modernisiertes Bad (2017) mit altersgerechter Dusche
• Holz-/Alufenster mit Isolierverglasung
Wissenwertes:
MEA: 9040,9/1.000.000
Hausgeld: 326,00 €
davon Wohngeld: 238,73 €
davon Rücklage: 87,27 €
Hinweise:
GELDWÄSCHE: Als Immobilienmaklerunternehmen ist die FIRMA AS-Immobilien nach § § 1, 2 Abs. 1 Nr. 10, 4 Abs. 3 Geldwäschegesetz (GwG) dazu verpflichtet, vor Begründung einer Geschäftsbeziehung die Identität des Vertragspartners festzustellen und zu überprüfen. Hierzu ist es erforderlich, dass wir die relevanten Daten Ihres Personalausweises festhalten (beispielsweise mittels einer Kopie). Das Geldwäschegesetz (GwG) sieht vor, dass der Makler die Kopien bzw. Unterlagen fünf Jahre aufbewahren muss.
PROVISIONSHINWEIS: Mit der Anfrage bei und durch Inanspruchnahme der Dienstleistung der Firma AS-IMMOBILIEN, wird ein Maklervertrag geschlossen. Sofern es durch die Tätigkeit der Firma AS-IMMOBILIEN zu einem wirksamen Hauptvertrag mit der Eigentümerseite kommt, haben Eigentümer und Käufer bei Abschluss eines KAUFVERTRAGS eine Maklercourtage in Höhe von jeweils 3,57% des Kaufpreises, mindestens jedoch 3.927,00 Euro inkl. MwSt. an die Firma AS-IMMOBILIEN gegen Rechnung zu zahlen. Die Höhe der Courtage richtet sich nach den ab dem 23.12.2020 in Kraft getretenen gesetzlichen Regelungen zur Teilung der Maklercourtage. Hiernach wird die Courtage regelmäßig für beide Parteien (Eigentümer und Käufer) verdient und fällig.
HAFTUNG: Wir weisen darauf hin, dass die von uns weitergegebenen Objektinformationen, Unterlagen, Pläne etc. vom Verkäufer bzw. Vermieter stammen. Eine Haftung für die Richtigkeit oder Vollständigkeit der Angaben übernehmen wir daher nicht. Es obliegt daher unseren Kunden, die darin enthaltenen Objektinformationen und Angaben auf ihre Richtigkeit hin zu überprüfen. Alle Immobilienangebote sind freibleibend und vorbehaltlich Irrtümer, Zwischenverkauf- und Vermietung oder sonstiger Zwischenverwertung.
WIDERRUFSRECHT:
Sie haben das Recht, binnen vierzehn Tagen ohne Angabe von Gründen diesen Vertrag zu widerrufen. Die Widerrufsfrist beträgt vierzehn Tage ab dem Tag des Vertragsabschlusses. Um Ihr Widerrufsrecht auszuüben, müssen Sie uns (AS Immobilien Andreas Schnellting, Fritz-Wunderlich-Straße 20, 66869 Kusel, Tel. (06381) 99 53 02, Fax (06381) 99 53 06, oder E-Mail mittels einer eindeutigen Erklärung (z.B. ein mit der Post versandter Brief, Telefax oder E-Mail) über Ihren Entschluss, den Vertrag zu widerrufen, informieren. Zur Wahrung der Widerrufsfrist reicht es aus, dass Sie die Mitteilung über die Ausübung des Widerrufsrechts vor Ablauf der Widerrufsfrist absenden.
| Objekt ID: | 202510311 |
| Kaufpreis: | 279.000,00 EUR |
| Hauskosten: | 326,00 EUR |
| Monatl. Mieteinnahmen (Ist): | 609,00 EUR |
| Provision für Käufer: | 3,57 % inkl. MwSt. |
| Zimmer: | 4 |
| Schlafzimmer: | 3 |
| Badezimmer: | 1 |
| Wohnfläche: | 90,00 m² |
| Etage: | 3 |
| Baujahr: | 1982 |
| Letzte Renovierung: | 2017 |
| Objektzustand: | gepflegt |
| Preise zuzüglich Mehrwertsteuer: | ja |
| Aktuelle Mieteinnahmen pro Monat: | 609 € |
| Anzahl TG-Stellplätze: | 1 |
| Stellplätze: | 1 |
| Balkone: | 1 |
| Bodenbelag: | Fliesen, Parkett, Kunststoff |
| Badausstattung: | Dusche |
| Stellplatzart: | Tiefgarage |
| Warmwasser im Energieverbrauch enthalten: | nein |
| Energieausweis-Ausstellungsdatum: | 05.04.2018 |
| Energieausweis-Jahrgang: | ab Mai 2014 |
| Energieausweis-Gebäudeart: | Wohngebäude |
| Heizungsart: | Zentralheizung |
| Baujahr lt. Energieausweis: | 1982 |
| Energieeffizienzklasse: | D |
| Wert des Endenergiebedarfs: | 108,70 kWh/(m²*a) |
| Art des Energieausweises: | Bedarf |
| Gültigkeit des Energieausweises: | 04.04.2028 |






































