Hier finden Sie ein gepflegtes und modernisiertes Zuhause inmitten der Stadt und mitzubringen brauchen Sie nur Ihre Kleider
Hier finden Sie ein liebevoll gepflegtes und umfassend modernisiertes Zuhause inmitten der Stadt – und das Beste daran: Sie müssen nur noch Ihre Koffer packen! Dieses charmante Reihenhaus vereint den historischen Charakter der frühen 1900er-Jahre mit dem zeitgemäßen Wohnkomfort von heute.
In unmittelbarer Nähe zur Fußgängezone gelegen, genießen Sie hier urbanes Leben in angenehmer Nachbarschaft und mit kurzen Wegen zu allem, was das tägliche Leben bereichert.
Auf rund 103 m² Wohnfläche, verteilt auf zwei Etagen, erwartet Sie ein durchdachtes Raumkonzept, das sowohl Singles, Paaren als auch kleinen Familien ein behagliches Zuhause bietet. Ergänzt wird das Platzangebot durch einen vollwertigen Keller auf Straßenniveau sowie einen weiteren, darunterliegenden Keller mit den Hausanschlüssen. Der wärmegedämmte Dachboden, über eine Ausziehleiter erreichbar, eröffnet zudem Ausbaupotenzial für zusätzlichen Wohnraum oder kreative Nutzungsmöglichkeiten.
Im ersten Obergeschoss befinden sich die lichtdurchfluteten Wohnräume: ein gemütliches Wohnzimmer, ein einladendes Esszimmer mit Kaminofen für stimmungsvolle Abende sowie die moderne Küche mit hochwertiger Einbauküche aus dem Anfang der 2000er Jahre. Hier finden Sie alles, was das Herz begehrt – Backofen mit Ceranfeld, Kühlschrank mit Gefrierfach, Spülmaschine sowie ausreichend Stauraum in Ober- und Unterschränken. Besonders praktisch: der direkte Zugang zum Balkon mit Blick in den liebevoll gestalteten Innenhof – ideal für ein Frühstück im Freien. Eine separate Gästetoilette sowie der Flur mit schöner Eichenholztreppe komplettieren diese Etage.
Im zweiten Obergeschoss, welches Sie über eine gepflegte Holztreppe erreichen, erwarten Sie das großzügige Schlafzimmer sowie ein weiteres Zimmer, das sich flexibel als Kinder-, Arbeits- oder Gästezimmer nutzen lässt. Auch hier genießen Sie Komfort durch ein modernes Badezimmer mit Tageslicht, ein Duschbad mit Toilette sowie einen zweiten Balkon, der die Etage wunderbar ergänzt.
Besonders hervorzuheben sind die zahlreichen durchdachten Details dieser Immobilie: Klimaanlagen in den Wohnräumen des 1. Obergeschosses sowie im Schlafzimmer im 2. OG, elektrische Rollläden an den großen Fenstern im Wohnbereich und der bereits erwähnte Kaminofen sorgen für ein angenehmes Raumklima zu jeder Jahreszeit.
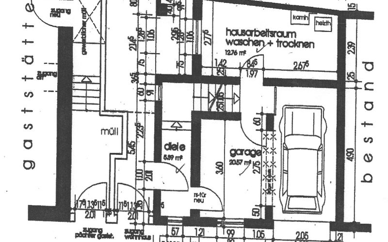
Auf Straßenniveau empfängt Sie ein kleiner, gepflegter Innenhof – ein echtes Schmuckstück, das von den Eigentümern liebevoll angelegt wurde. Hier befinden sich auch die praktischen Nutzräume: ein Hauswirtschaftsraum sowie eine Garage, die ideal für kleinere Fahrzeuge geeignet ist.
Dieses Stadthaus bietet Ihnen nicht nur ein bezugsfertiges Zuhause mit Stil und Geschichte, sondern auch ein Lebensgefühl, das den Charme vergangener Zeiten mit modernem Wohnkomfort vereint. Einziehen, wohlfühlen – und ankommen
Details zur Aufteilung:
Erdgeschoss:
Hauseingangsbereich mit Innenhof
Diele mit Zugang zu Garage
Hauswirtschaftsraum
Eine mit Eichenstufen belegte Treppe führt ins Obergeschoss zum Wohnbereich
Obergeschoss:
Wohnzimmer
Esszimmer
Küche mit EBK
Balkon
Toilette
Etagenflur
2. Obergeschoss:
Schlafzimmer
Balkon
Kinder-, Gäste- oder Arbeitszimmer
Tageslicht-Badezimmer
Duschbadezimmer
Etagenflur
Dachboden:
Der Dachboden ist als Speicherboden ausgebildet und gedämmt
Keller:
Kellerraum I mit Hausanschlüssen
Kellerraum II
Außenbereich:
Innenhof
Garage mit Sektionaltor
Zentral in der Innenstadt von Kaiserslautern – Restaurants, Cafés, Einkaufsmöglichkeiten und kulturelle Angebote sind bequem zu Fuß erreichbar. Auch öffentliche Verkehrsmittel sowie alle Einrichtungen des täglichen Bedarfs befinden sich in unmittelbarer Nähe.
Diese Immobilie vereint urbanes Lebensgefühl, Komfort und historische Eleganz – perfekt für alle, die stilvolles Wohnen im Herzen der Stadt schätzen
Details zur Ausstattung:
Bauweise: massiv,
Dach: Satteldach
Eindeckung: Ziegel (2011)
Fenster & Türen:
doppelt verglaste Kunststofffenster (2000)
tlw. elektrisch betriebene Rollläden
Balkontüren im 1. OG und 2. OG
weiße Innentüren
Glas-Schiebetür im Wohnzimmer
Fußboden:
Fliesen, Laminat
Wände und Decken:
Putz, Tapeten und Holzverkleidung
Heizung:
Erdgas-Zentralheizung
Marke Buderus
Warmwasserboiler 150 l
Kaminofen für feste Brennstoffe im Wohnzimmer
Flachheizkörper
Energieeffizienz:
Energiebedarfsausweis, gültig bis 11.09.2035
Endenergiebedarf: 252,8 kWh /m2*a)
Primärenergiebedarf: 280,5 kWh/(m²*a)
Klasse: H
Versorgung: Erdgas
Baujahr Gebäude: 1900
Baujahr der Heizung gem. Energieausweis: 2000
Sanitärausstattung:
Tageslicht-Badezimmer I im 2. OG mit
Badewanne, 2 Waschbecken mit Badezimmermöbel, Badewanne
raumhoch gefliest
Badezimmer II im 2. OG mit:
Dusche mit Kabine, Waschbecken, Toilette
raumhoch gefliest
Gäste-Toilette im 1. OG mit:
Toilette und Waschbecken
Küche:
Einbauküche mit Ober- und Unterschränken
Elektro-Markengeräte
Glaskeramik-Kochfeld, Backofen, Dunstabzugshaube
Spülmaschine, Kühlschrank sowie Kühl-Gefrierkombination
Diverses / Wissenswertes:
Kabel-TV
Glasfaserausbau in Planung
Klimaanlage in Wohnbereich und Schlafzimmer
Technische Gebäudeausstattung 2000 erneuert
Hinweise:
GELDWÄSCHE: Als Immobilienmaklerunternehmen ist die FIRMA AS-Immobilien nach § § 1, 2 Abs. 1 Nr. 10, 4 Abs. 3 Geldwäschegesetz (GwG) dazu verpflichtet, vor Begründung einer Geschäftsbeziehung die Identität des Vertragspartners festzustellen und zu überprüfen. Hierzu ist es erforderlich, dass wir die relevanten Daten Ihres Personalausweises festhalten (beispielsweise mittels einer Kopie). Das Geldwäschegesetz (GwG) sieht vor, dass der Makler die Kopien bzw. Unterlagen fünf Jahre aufbewahren muss.
PROVISIONSHINWEIS: Mit der Anfrage bei und durch Inanspruchnahme der Dienstleistung der Firma AS-IMMOBILIEN, wird ein Maklervertrag geschlossen. Sofern es durch die Tätigkeit der Firma AS-IMMOBILIEN zu einem wirksamen Hauptvertrag mit der Eigentümerseite kommt, haben Eigentümer und Käufer bei Abschluss eines KAUFVERTRAGS eine Maklercourtage in Höhe von jeweils 3,57% des Kaufpreises, mindestens jedoch 3.927,00 Euro inkl. MwSt. an die Firma AS-IMMOBILIEN gegen Rechnung zu zahlen. Die Höhe der Courtage richtet sich nach den ab dem 23.12.2020 in Kraft getretenen gesetzlichen Regelungen zur Teilung der Maklercourtage. Hiernach wird die Courtage regelmäßig für beide Parteien (Eigentümer und Käufer) verdient und fällig.
HAFTUNG: Wir weisen darauf hin, dass die von uns weitergegebenen Objektinformationen, Unterlagen, Pläne etc. vom Verkäufer bzw. Vermieter stammen. Eine Haftung für die Richtigkeit oder Vollständigkeit der Angaben übernehmen wir daher nicht. Es obliegt daher unseren Kunden, die darin enthaltenen Objektinformationen und Angaben auf ihre Richtigkeit hin zu überprüfen. Alle Immobilienangebote sind freibleibend und vorbehaltlich Irrtümer, Zwischenverkauf- und Vermietung oder sonstiger Zwischenverwertung.
WIDERRUFSRECHT:
Sie haben das Recht, binnen vierzehn Tagen ohne Angabe von Gründen diesen Vertrag zu widerrufen. Die Widerrufsfrist beträgt vierzehn Tage ab dem Tag des Vertragsabschlusses. Um Ihr Widerrufsrecht auszuüben, müssen Sie uns (AS Immobilien Andreas Schnellting, Fritz-Wunderlich-Straße 20, 66869 Kusel, Tel. (06381) 99 53 02, Fax (06381) 99 53 06, oder E-Mail mittels einer eindeutigen Erklärung (z.B. ein mit der Post versandter Brief, Telefax oder E-Mail) über Ihren Entschluss, den Vertrag zu widerrufen, informieren. Zur Wahrung der Widerrufsfrist reicht es aus, dass Sie die Mitteilung über die Ausübung des Widerrufsrechts vor Ablauf der Widerrufsfrist absenden.
| Objekt ID: | 202509031 |
| Kaufpreis: | 279.000,00 EUR |
| Provision für Käufer: | Käuferprovision: 3,57 % inkl. MwSt., Verkäuferprovision: 3,57 % inkl. MwSt. |
| Zimmer: | 4 |
| Schlafzimmer: | 2 |
| Badezimmer: | 2 |
| Wohnfläche: | 103,00 m² |
| Grundstücksfläche: | 82,00 m² |
| Etagen: | 3 |
| Baujahr: | 1900 |
| Objektzustand: | modernisiert |
| Preise zuzüglich Mehrwertsteuer: | ja |
| Anzahl Garagenstellplätze: | 1 |
| Stellplätze: | 1 |
| Balkone: | 2 |
| Bodenbelag: | Fliesen, Laminat |
| Badausstattung: | Dusche, Badewanne, Fenster |
| Warmwasser im Energieverbrauch enthalten: | nein |
| Energieausweis-Ausstellungsdatum: | 10.09.2025 |
| Energieausweis-Jahrgang: | ab Mai 2014 |
| Heizungsart: | Zentralheizung |
| Befeuerungsart: | Erdgas L |
| Baujahr lt. Energieausweis: | 1955 |
| Energieeffizienzklasse: | H |
| Wert des Endenergiebedarfs: | 252,80 kWh/(m²*a) |
| Art des Energieausweises: | Bedarf |
| Gültigkeit des Energieausweises: | 11.09.2035 |












































































