Ein Zuhause mit Geschichte und Charme – großzügiges Einfamilienhaus mit Garten
Willkommen in Ihrem neuen Zuhause: Dieses grundsolide Einfamilienhaus aus dem frühen 20. Jahrhundert überzeugt durch seine zeitlose Architektur und den besonderen Charme einer klassischen Satteldachgaube. Die Immobilie bietet mit rund 160 m² Wohnfläche und einem durchdachten Grundriss viel Raum für Familienleben, kreative Gestaltung und persönliche Rückzugsorte.
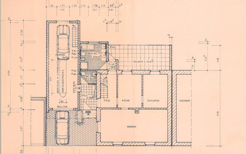
Im Erdgeschoss erwartet Sie ein großzügiges Wohn- und Esszimmer, das durch seine Offenheit und Helligkeit besticht. Die angrenzende Küche ist mit einer Einbauküche aus den 1990er Jahren ausgestattet und bietet ausreichend Platz für gemeinsame Kochabende. Ein geräumiges Badezimmer, Diele, Flur, Schlafzimmer sowie ein Balkon mit Blick in den Garten und die umliegende Natur runden das Erdgeschoss ab. Von hier aus gelangen Sie außerdem direkt in die ebenfalls großzügig geschnittene, mit einer Werkstattgrube ausgestattete Garage – besonders praktisch im Alltag.
Über eine gepflegte Holztreppe mit Handlauf erreichen Sie das Obergeschoss, in dem Ihnen drei Schlafzimmer, ein Etagenflur sowie ein weiteres Badezimmer zur Verfügung stehen. Anders als bei vielen vergleichbaren Objekten wurde das Dachgeschoss nicht durch eine Ausziehleiter erschlossen, sondern durch eine vollwertige Holztreppe integriert. Dort finden Sie ein gemütliches Jugendzimmer sowie ein kleines Gästezimmer – ideal als private Rückzugsorte oder zur individuellen Nutzung.
Das Haus ist vollständig unterkellert. Von dieser Ebene aus gelangen Sie direkt zur überdachten Terrasse, die Ihnen zusätzlichen Wohnkomfort und entspannte Stunden im Freien ermöglicht. Das rund 410 m² große Grundstück ist als terrassierte Grünfläche angelegt und wird von einem alten, gewachsenen Apfelbaum geprägt.
Diese Immobilie verbindet historischen Charme mit solider Bauweise und bietet eine hervorragende Grundlage für individuelle Wohnideen. Entdecken Sie die vielen Möglichkeiten dieses Hauses und lassen Sie sich vor Ort von seinem besonderen Charakter überzeugen.
Details zur Aufteilung:
Erdgeschoss:
Wohn- und Esszimmer
Küche mit EBK
Badezimmer
Schlafzimmer
Diele mit Treppenhaus
Flur
Balkon
Obergeschoss:
Schlafzimmer
Kinderzimmer I
Kinderzimmer II (ehemals Küche)
Badezimmer
Etagenflur
Dachgeschoss:
Kinderzimmer
Gästezimmer
Flur
Keller:
Abstellraum/Speisekammer
Keller I
Keller II
Heizungsraum
Öllager
Werkstatt
Außenbereich:
terrassierter Garten mit Grünfläche und Baumbestand
überdachte Terrasse
Gartengeräteraum
Dittweiler ist eine charmante Gemeinde im Landkreis Kusel in Rheinland-Pfalz und gehört zur Verbandsgemeinde Oberes Glantal. Der Ort ist geprägt von einer idyllischen Landschaft, die von Wiesen, Hügeln und Wäldern geprägt ist. Mit einer überschaubaren Einwohnerzahl bietet Dittweiler eine familiäre Atmosphäre und ist ideal für Naturliebhaber und Ruhesuchende. Gleichzeitig bietet die Region eine gute Anbindung an größere Städte wie Homburg, Kusel und Waldmohr. Die nächste Bushaltestelle ist nur 300 Meter entfernt und bietet Anschluss an den Nahverkehr. Für Pendler ist die Auffahrt zur A6 in Richtung Saarbrücken oder Mannheim in gut 10 Minuten mit dem Auto erreichbar.
Das einseitig angebaute Einfamilienhaus befindet sich in einer Wohngegend mit überwiegend Einfamilienhäusern. Ein Kindergarten ist im Ort vorhanden, eine Grundschule befindet sich in der Nachbargemeinde Brücken während weiterführende Schulen in Schönenberg-Kübelberg, Homburg oder Kusel erreichbar sind. Ärzte und Apotheken sind in Waldmohr oder sowie in Schönenberg-Kübelberg vorhanden.
Details zur Ausstattung:
Bauweise: massiv,
Dach: Satteldach (Kaltdach)
Eindeckung: Ziegel
Fenster & Türen:
doppelt verglaste Kunststofffenster (1998, 1982)
Rollladen vorhanden, im EG tlw. elektrisch betrieben
Holztüren
Haustür mit Glasausschnitt (1982)
Fußboden:
Laminat auf Dielen
Fliesen
Teppichboden auf Dielen
Wände und Decken:
Tapete
Heizung:
Öl-Zentralheizung Bj. 1989, Brenner Bj. 2015
Flach- sowie Rippenheizkörper
Energieeffizienz:
Energiebedarfsausweis, gültig bis 22.09.2035
Endenergiebedarf: 381,4 kWh /m2*a)
Primärenergiebedarf 424,0 kWh/(m²*a)
Klasse: H
Versorgung: Öl
Baujahr Gebäude: 1925
Baujahr der Heizung gem. Energieausweis: 1989
Sanitärausstattung:
Tageslicht-Badezimmer im EG mit
Badewanne, Dusche mit Kabine (2015) 2 Einzelwaschbecken, Toilette, Bidet
raumhoch gefliest, Deckenpaneelen
Tageslicht-Badezimmer im OG mit:
Badewanne, Waschbecken, Toilette
Küche:
Einbauküche mit Ober- und Unterschränken
Glaskeramik, Backofen, Dunstabzugshaube
Spülmaschine, Kühlschrank
Diverses / Wissenswertes:
SAT-TV
Hinweise:
GELDWÄSCHE: Als Immobilienmaklerunternehmen ist die FIRMA AS-Immobilien nach § § 1, 2 Abs. 1 Nr. 10, 4 Abs. 3 Geldwäschegesetz (GwG) dazu verpflichtet, vor Begründung einer Geschäftsbeziehung die Identität des Vertragspartners festzustellen und zu überprüfen. Hierzu ist es erforderlich, dass wir die relevanten Daten Ihres Personalausweises festhalten (beispielsweise mittels einer Kopie). Das Geldwäschegesetz (GwG) sieht vor, dass der Makler die Kopien bzw. Unterlagen fünf Jahre aufbewahren muss.
PROVISIONSHINWEIS: Mit der Anfrage bei und durch Inanspruchnahme der Dienstleistung der Firma AS-IMMOBILIEN, wird ein Maklervertrag geschlossen. Sofern es durch die Tätigkeit der Firma AS-IMMOBILIEN zu einem wirksamen Hauptvertrag mit der Eigentümerseite kommt, haben Eigentümer und Käufer bei Abschluss eines KAUFVERTRAGS eine Maklercourtage in Höhe von jeweils 3,57% des Kaufpreises, mindestens jedoch 3.927,00 Euro inkl. MwSt. an die Firma AS-IMMOBILIEN gegen Rechnung zu zahlen. Die Höhe der Courtage richtet sich nach den ab dem 23.12.2020 in Kraft getretenen gesetzlichen Regelungen zur Teilung der Maklercourtage. Hiernach wird die Courtage regelmäßig für beide Parteien (Eigentümer und Käufer) verdient und fällig.
HAFTUNG: Wir weisen darauf hin, dass die von uns weitergegebenen Objektinformationen, Unterlagen, Pläne etc. vom Verkäufer bzw. Vermieter stammen. Eine Haftung für die Richtigkeit oder Vollständigkeit der Angaben übernehmen wir daher nicht. Es obliegt daher unseren Kunden, die darin enthaltenen Objektinformationen und Angaben auf ihre Richtigkeit hin zu überprüfen. Alle Immobilienangebote sind freibleibend und vorbehaltlich Irrtümer, Zwischenverkauf- und Vermietung oder sonstiger Zwischenverwertung.
WIDERRUFSRECHT:
Sie haben das Recht, binnen vierzehn Tagen ohne Angabe von Gründen diesen Vertrag zu widerrufen. Die Widerrufsfrist beträgt vierzehn Tage ab dem Tag des Vertragsabschlusses. Um Ihr Widerrufsrecht auszuüben, müssen Sie uns (AS Immobilien Andreas Schnellting, Fritz-Wunderlich-Straße 20, 66869 Kusel, Tel. (06381) 99 53 02, Fax (06381) 99 53 06, oder E-Mail mittels einer eindeutigen Erklärung (z.B. ein mit der Post versandter Brief, Telefax oder E-Mail) über Ihren Entschluss, den Vertrag zu widerrufen, informieren. Zur Wahrung der Widerrufsfrist reicht es aus, dass Sie die Mitteilung über die Ausübung des Widerrufsrechts vor Ablauf der Widerrufsfrist absenden.
| Objekt ID: | 202509151 |
| Kaufpreis: | 149.000,00 EUR |
| Provision für Käufer: | Käuferprovision: 3,57 % inkl. MwSt. |
| Zimmer: | 7 |
| Schlafzimmer: | 6 |
| Badezimmer: | 2 |
| Wohnfläche: | 160,00 m² |
| Grundstücksfläche: | 410,00 m² |
| Etagen: | 3 |
| Baujahr: | 1925 |
| Objektzustand: | gepflegt |
| Anzahl Garagenstellplätze: | 1 |
| Stellplätze: | 1 |
| Balkone: | 1 |
| Terrassen: | 1 |
| Bodenbelag: | Fliesen, Teppich, Dielen |
| Badausstattung: | Dusche, Badewanne, Fenster, Bidet |
| Energieausweis-Ausstellungsdatum: | 23.09.2025 |
| Energieausweis-Jahrgang: | ab Mai 2014 |
| Heizungsart: | Zentralheizung |
| Befeuerungsart: | Öl |
| Baujahr lt. Energieausweis: | 1925 |
| Energieeffizienzklasse: | H |
| Wert des Endenergiebedarfs: | 381,40 kWh/(m²*a) |
| Art des Energieausweises: | Bedarf |
| Gültigkeit des Energieausweises: | 22.09.2035 |
































































